The Slope creates a place for entertainment, where every new visit leads to different discoveries.

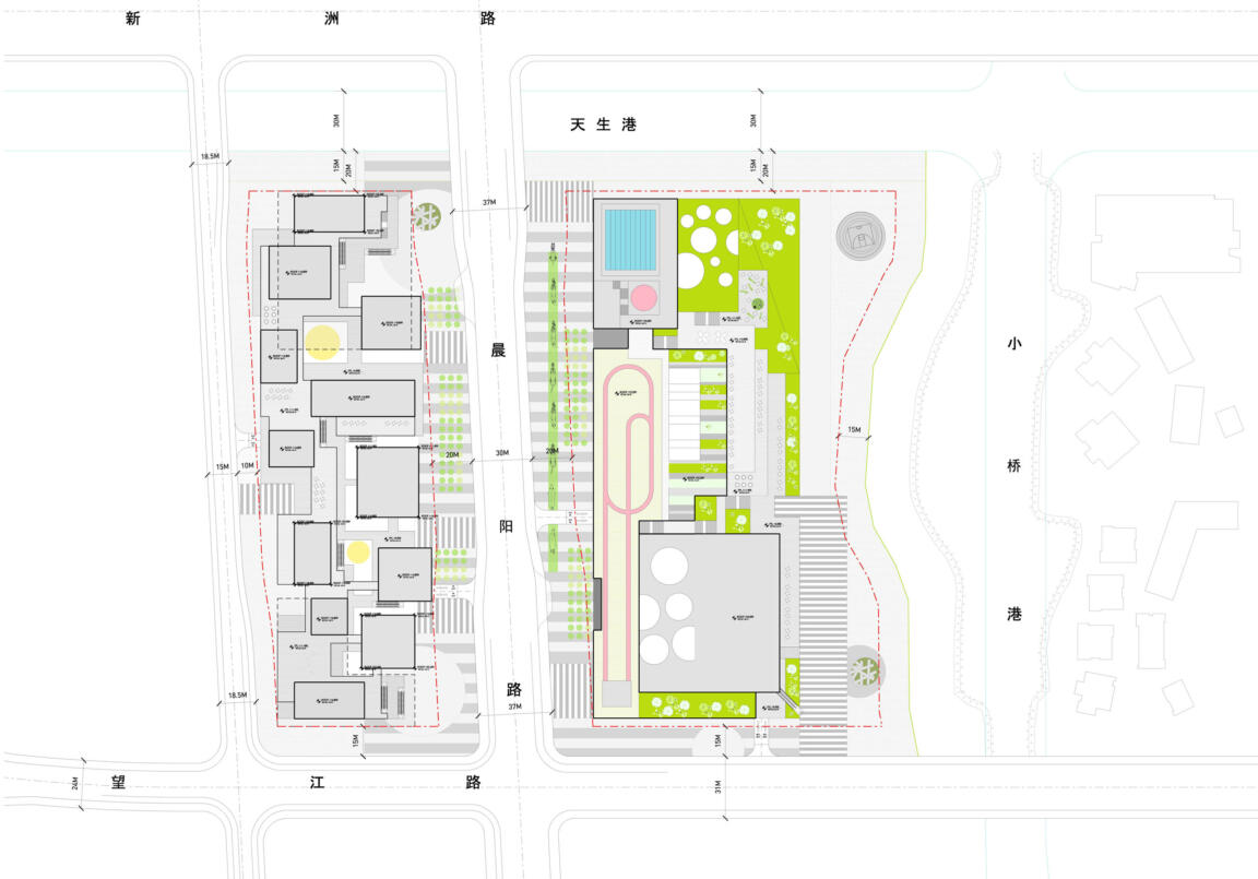
‘The Slope’ is located in the riverside city of Jingjiang at the lower reaches of the Yangtze River. The 62,800 sqm shopping and entertainment complex strives to be a model for a ‘third place’ – an enjoyable gathering spot in addition to home and work. CLOU proposes a sloping functional green roof creating a connection with its surroundings – both the local community and the waterfront park that the building faces.
CLOU envisages ‘The Slope’ as a commercial civic centre which offers a wider range of activities in an attempt to actively support the lifestyle and living quality of the surrounding communities. It exists to meet the evolving expectations of people living a meaningful and experience-rich urban life.








