CLOU has carved the 7,600 sqm volume into a sculptural form which shifts character from different viewpoints.

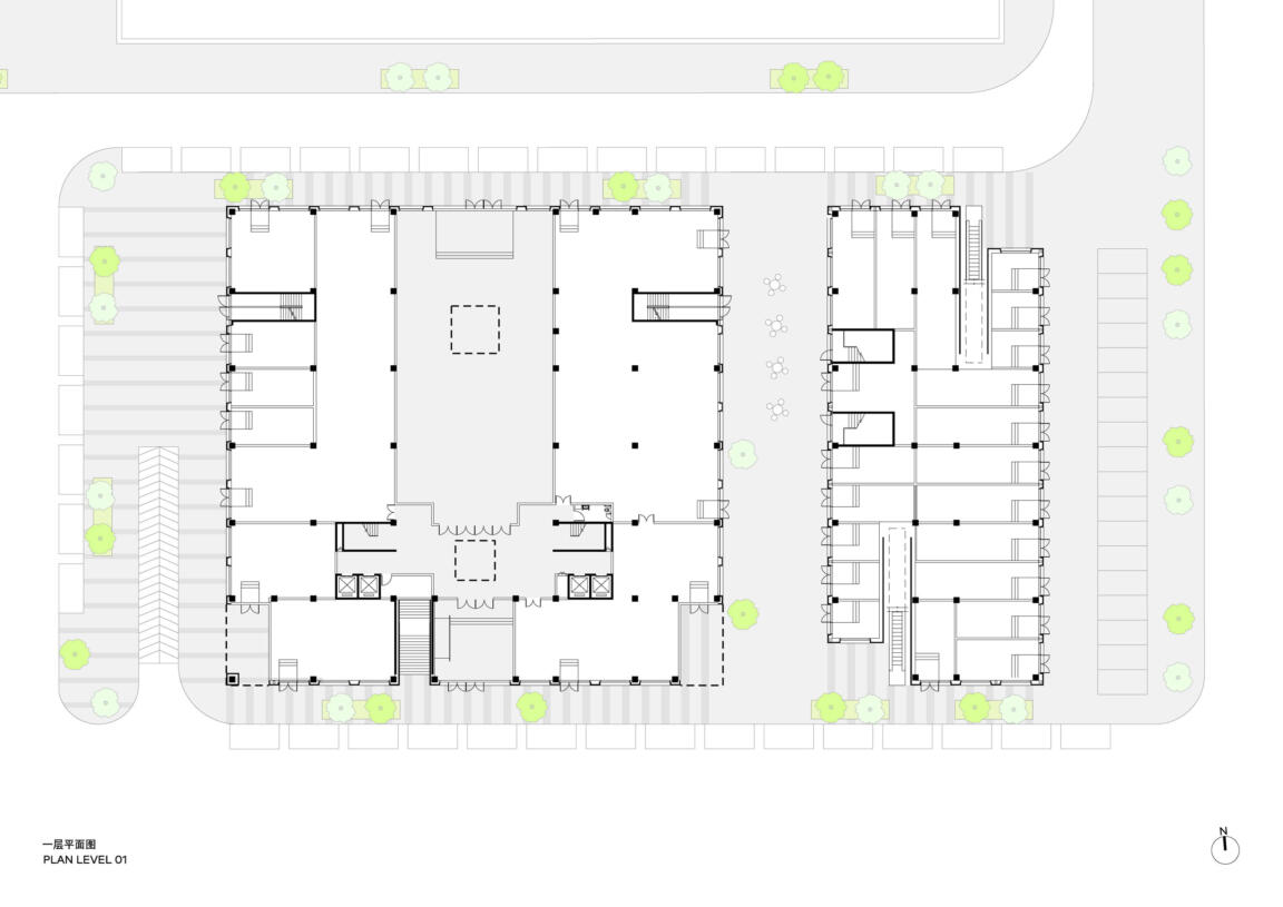
The Cross-Straits Culture and Creative Industrial Park – located in the Chengyang District of Qingdao – was developed by Vanke as a large-scale complex and hub for innovative entities. CLOU has designed one of the mixed-use volumes within the industrial park. The building houses a Taiwanese bookstore, a small city hall and provides a suitable meeting place for cross-cultural communications.
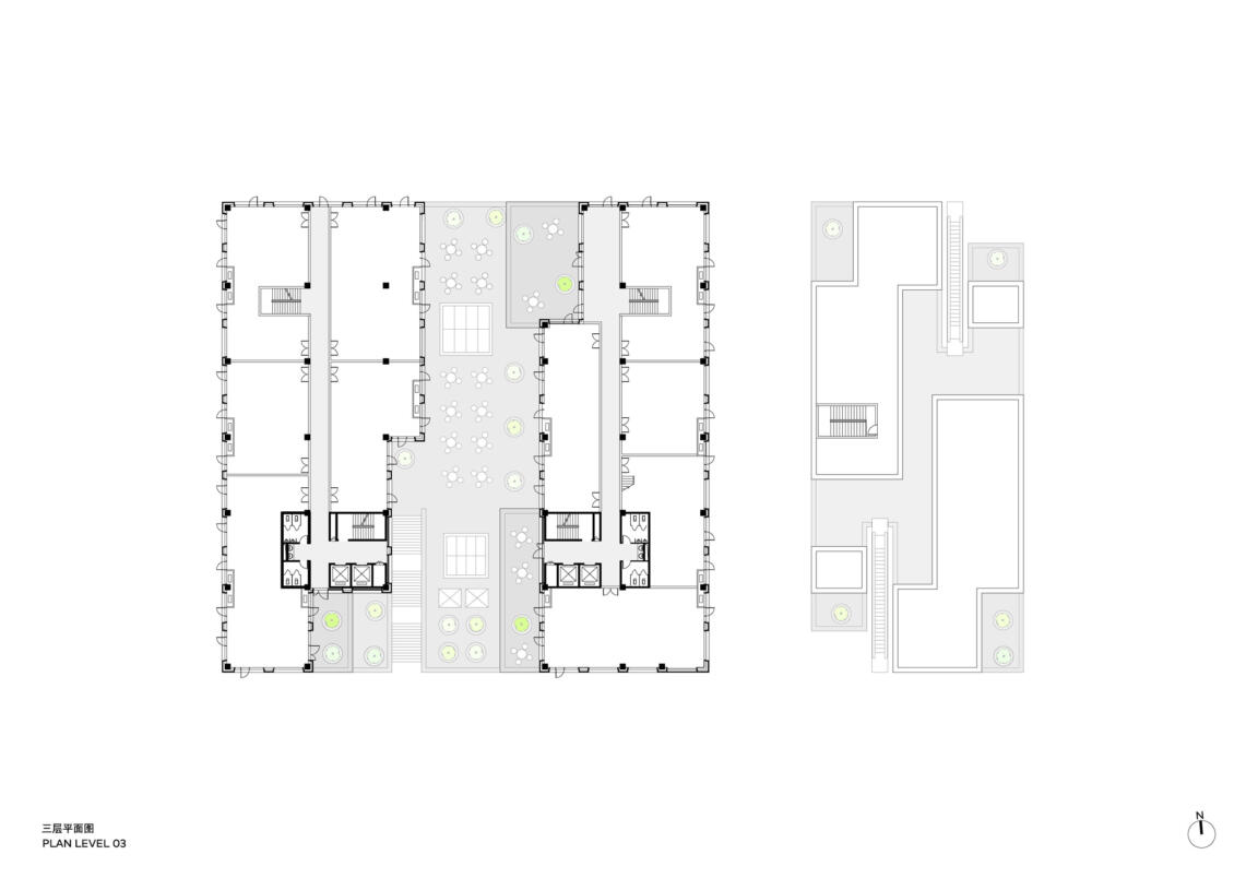
CLOU has carved the 7,600 sqm volume into a sculptural form with stepped terraces creating a proposal which shifts character from different viewpoints. The human-scale friendly terraces are curated into a series of vertical landscapes with the flexibility to host outdoor creative events.
The form of the volume resembles stepped boxes and, when paired with the geometric windows and doors, expresses a rational beauty. The façade design of the volumes plays with pinks and grey which, from a distance, creates a shiny effect that warms as one approaches.















